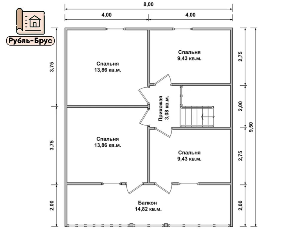
Дом 5 на 9